Projetos de arquitetura, interiores, arquitetura paisagística e gerenciamento de execução.

Projetos de arquitetura, interiores, arquitetura paisagística e gerenciamento de execução.

Apresentação

O escritório Casa Sete Arquitetura é a soma da atuação profissional de 3 arquitetos titulares e selecionados colaboradores desde 1995.

Cada arquiteto desenvolveu sob o mesmo “teto”, e em frequentes parcerias, o seu caminho de experiências e contato com clientes e fornecedores, caracterizando a Casa Sete como uma saudável união de forças com base nos mesmos objetivos e valores éticos.

Dentre tais objetivos, destacam-se o de projetar e o de construir espaços que atendam às necessidades e expectativas dos clientes, apresentando soluções adequadas e criativas de arquitetura e design, com as quais os mesmos se identifiquem e realizem.

Outro importante objetivo é a constante busca em harmonizar estética e funcionalidade, otimizando áreas e conforto em cada ambiente projetado ou construído. Como metodologia de trabalho, a prioridade dada à conceituação arquitetônica e ao planejamento das obras garante que as demais etapas de projeto e execução se desenvolvam dentro dos padrões de excelência.

A excelência no detalhamento dos projetos está atrelada a um amplo conhecimento técnico e operacional dos processos construtivos, assim como o acompanhamento de execução das obras projetadas também é de fundamental importância para a concretização dos conceitos do projeto e para a qualidade final do trabalho.

O universo de atuação da Casa Sete Arquitetura abrange os segmentos residencial, comercial, institucional, corporativo, de serviços, mostras e parcerias especiais, podendo incluir todas as fases de trabalho, desde a pesquisa imobiliária, projetos de arquitetura e interiores, decoração e mobiliário, até a execução das diversas etapas das obras.

Arquitetos Titulares

ADRIANA GOMES COELHO

•   Formada em 1988 pela Faculdade de Arquitetura e Urbanismo da Universidade Mackenzie, São Paulo.
•   Especialização em Arquitetura de Gaudí, concluída em 1991, na Escola Técnica Superior de Arquitetura de Barcelona, Espanha.

Experiência profissional no exterior:
•   Colaborou com o escritório Luís Gomes i Martínez em Barcelona, Espanha (1990).

MARIZA SCAVAZZA VANZELLA

•   Formada em 1988 pela Faculdade de Arquitetura e Urbanismo da Universidade Mackenzie, São Paulo.
•   Especialização em Arquitetura de Gaudi, concluída em 1991, na Escola Técnica Superior de Arquitetura de Barcelona, Espanha.

Experiência profissional no exterior:
•   Colaborou com os escritórios Luís Gomes i Martínez em Barcelona, Espanha (1990), Studio Ricci & Spaini Associati em Roma (1991) e Studio Veronesi em Milão, Itália (2005).
•   Projeto arquitetônico para reforma de apartamento em Milão, Itália (2005).

FABIO MANENTE

•   Formado em 1988 pela Faculdade de Arquitetura e Urbanismo da Universidade Mackenzie, São Paulo.
•   Mestrado em Geografia Urbana, concluído em 2001, pelo Departamento de Geografia Humana da Faculdade de Filosofia, Letras e Ciências Humanas da USP, São Paulo.
• Doutorado em Ciências, concluído em 2025, pelo Programa Ambiente, Saúde e Sustentabilidade, da Faculdade de Saúde Pública da USP, SP.
•   Especialização em Psicologia Junguiana, concluída em 2014, pela Faculdade de Ciências da Saúde de São Paulo, São Paulo.
•   Especialização em Arte terapia e Técnicas Expressivas, concluída em 2016, pela Faculdade de Ciências da Saúde de São Paulo, São Paulo.
•   Professor de Arquitetura e Urbanismo na Universidade Paulista, São Paulo.

Experiência profissional no exterior:

•   Projetos arquitetônicos para residências em Beijing, China (2015) e Dortmund, Alemanha (2015).

Principais Arquitetos Colaboradores:

LUANA CARLETTO DE QUEIROZ
MARIANA MORAES
PEDRO HENRIQUE BARROS DA SILVA
RENATA RAMOS DE OLIVEIRA SOUZA

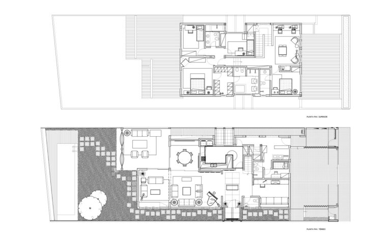
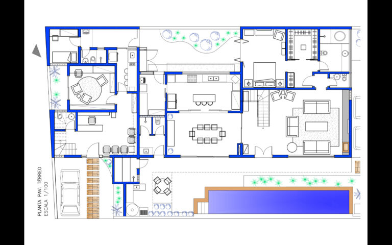
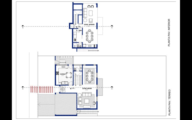
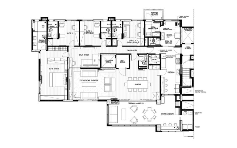
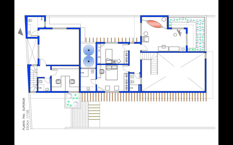
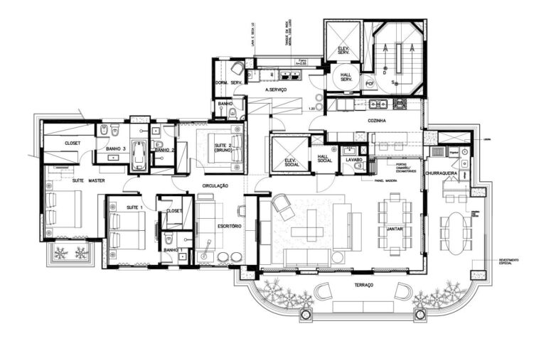
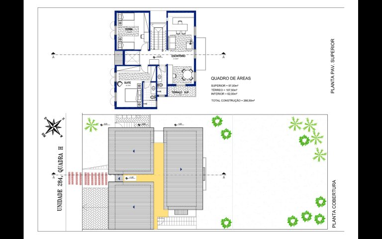
Residenciais

Projetos e gerenciamento de execução de edificações novas, reformas e personalização de casas e apartamentos.

Comerciais

Atuação em projetos e gerenciamento de execução nos seguintes segmentos:
corporativo, bares e restaurantes, lojas, clinicas, saúde veterinária, pousadas e outros.

Eventos

Participações em eventos, feiras e mostras.

Publicações

Av. Sen. Casemiro da Rocha, 638 – São Paulo – Brasil

CASA SETE –  Arquitetura | Todos os direitos reservados.